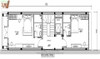
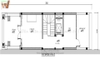
Thông tin công trình:
Chủ đầu tư:
Địa chỉ: 20 Kỳ Con, Hồng Bàng, Hải Phòng
Diện tích khu đất:
Tổng diện tích xây dựng: m2 (Chưa bao gồm sân vườn)
Tổng mức đầu tư: tỷ VNĐ chưa bao gồm nội thất rời
THIẾT KẾ - NHÀ PHỐ
(Chủ đầu tư: bác Hùng - Địa điểm: 20 Kỳ Con, Hồng Bàng, Hải Phòng)
Số lượng:
Phí vận chuyển: Tính khi thanh toán
Tổng tiền giỏ hàng: