Thiết kế biệt thự 250m2 hiện đại| Mẫu biệt thự đẹp BT0917|

Thiết kế biệt thự 250m2 hiện đại| Mẫu biệt thự đẹp BT0917|

Thiết kế biệt thự 250m2 hiện đại| Mẫu biệt thự đẹp BT0917|

Thông tin công trình:

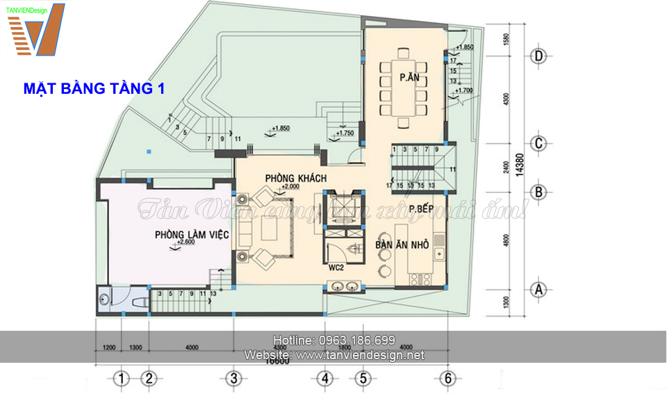
Mẫu biệt thự đẹp: Biệt thự BT0917

Đặc điểm nổi bật: Biệt thự 250m2 với tầng hầm, sân vườn, hồ bơi hiện đại.

Diện tích khu đất: 

Tổng diện tích xây dựng: m2 (Chưa bao gồm sân vườn)

Tổng mức đầu tư:  tỷ VNĐ chưa bao gồm nội thất rời

Liên hệ
Còn hàng
zalo